Описание стойки СК 26.3-2.3
Стойка (СК 26.3-2.3) применяется для устройства опор контактной сети железных дорог, трамвайных и троллейбусных линий, а также других инженерных сооружений. Изделие изготавливается компанией ГК "БЛОК", которая специализируется на производстве и поставке железобетонных изделий в Москве, с использованием высокопрочного бетона класса B40 и армирования стальной арматурой, что обеспечивает её прочность, устойчивость к нагрузкам и долговечность.
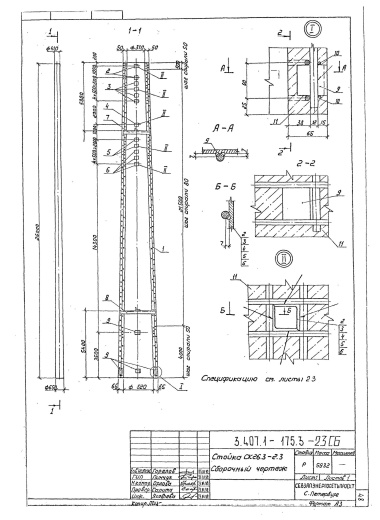
Нормативный документ: Серия 3.407.1-175 в.3.
Применение стойки СК 26.3-2.3
Стойка СК 26.3-2.3 используется для создания надёжных опор контактной сети, обеспечивающих безопасность, функциональность и долговечность объектов железнодорожной и городской инфраструктуры. Она служит важной частью системы, воспринимающей значительные механические нагрузки и воздействия окружающей среды. Для монтажа могут применяться дополнительные элементы: закладные детали, анкерные болты и другие комплектующие.
Типы стоек
Железобетонные стойки подразделяются на несколько типов в зависимости от назначения и конструкции:
- СК: стойка контактной сети;
- СКУ: стойка усиленная;
- СКД: стойка доборная;
- СКК: стойка комбинированная.
Размеры зависят от типа: длина 26000–26100 мм, ширина 650–660 мм, высота 650–660 мм.
Основные параметры, размеры и характеристики
- Длина L, мм: 26000
- Ширина b, мм: 650
- Высота h, мм: 650
- Масса, тонн: 5.932
- Объем бетона, м³: 2.15
- Класс бетона: B40 (марка М500)
- Геометрический объем, м³: 10.985
- Сталь, кг: 556.8
Закладные элементы
- Закладная 1: Каркас КП23
- Закладная 2: Деталь Б228
- Закладная 3: Деталь Б229
- Закладная 4: Деталь Б230
Дополнительные характеристики
- Марка по морозостойкости: F200–F300;
- Марка по водонепроницаемости: W8–W12;
- Технология изготовления: формование с использованием высокопрочного бетона.
Нормы загрузки
- Норма загрузки в автотранспорт 20 т, шт: 3 (при наличии специального оборудования).
Расшифровка маркировки СК 26.3-2.3
Маркировка "СК 26.3-2.3" содержит следующую информацию:
- СК – стойка контактной сети;
- 26 – условная длина изделия в дециметрах (26000 мм);
- 3 – условное обозначение поперечного сечения (650×650 мм);
- 2.3 – вариант исполнения или расчетная нагрузка.
Условия транспортировки и хранения
Стойки СК 26.3-2.3 перевозятся автомобильным или железнодорожным транспортом с использованием специальных захватных устройств (строп). Хранение осуществляется на ровных площадках с твердым покрытием. Стойки устанавливаются вертикально или горизонтально в зависимости от условий. Для предотвращения повреждений между изделиями устанавливаются деревянные прокладки.
Контроль качества стойки СК 26.3-2.3
Каждая стойка СК 26.3-2.3 проходит многоступенчатый контроль качества. Проверяются:
- прочность бетона (не ниже класса B40);
- соответствие геометрических размеров проектным данным;
- морозостойкость и водонепроницаемость бетона;
- точность расположения закладных элементов;
- отсутствие трещин, сколов и других дефектов.
Заключение
Стойка СК 26.3-2.3 – это надежный и долговечный элемент для устройства опор контактной сети. Благодаря использованию качественных материалов и современных технологий производства, она обеспечивает прочность, устойчивость и долговечность конструкций. Для заказа качественных железобетонных изделий обращайтесь к профессионалам своего дела – компании ГК "БЛОК".
Смотрите также:
| Варианты написания товара |
|---|
| Стойка СК 26.3-2.3 |
| СК 26.3-2.3 стойка |
| Стойка СК 26.3-2.3 Серия 3.407.1-175 в.3 |
| СК 26.3-2.3 Серия 3.407.1-175 в.3 |
| СК 26.3-2.3 |
| Стойка СК 26.3-2.3 ГОСТ |
| СК 26.3-2.3 ГОСТ |
|
ГОСТ/Серия
|
Серия 3.407.1-175 в.3 |
|
Длина, мм
|
26000 |
|
Ширина, мм
|
650 |
|
Высота, мм
|
650 |
|
Масса, тонн
|
5.932 |
|
Объем бетона, куб.м
|
2.15 |
|
Класс бетона
|
В40 |
|
Геометрический объем, м.куб
|
10.985 |
|
Сталь, кг
|
556.8 |
|
Закладная 1
|
Каркас КП23 |
|
Закладная 2
|
Деталь Б228 |
|
Закладная 3
|
Деталь Б229 |
|
Закладная 4
|
Деталь Б230 |
Как купить
Процесс покупки железобетонных изделий у нас прост и удобен. Следуйте этим шагам:
- Выбор продукции: Ознакомьтесь с нашим ассортиментом и выберите необходимые железобетонные изделия.
- Консультация: Свяжитесь с нашим менеджером для получения консультации по выбору продукции и уточнения всех деталей. Вы можете позвонить нам или написать на электронную почту.
- Оформление заказа: После согласования всех деталей оформите заказ. Менеджер поможет вам заполнить все необходимые документы.
- Согласование доставки: После оформления заказа наш менеджер свяжется с вами для согласования условий и сроков доставки.
- Оплата: Выберите удобный способ оплаты. Мы предлагаем несколько вариантов, включая безналичный расчет.
- Получение товара: После выполнения всех условий заказа, вы получите железобетонные изделия в назначенное время и по согласованному адресу. При получении подпишите акт приема-передачи.
Если у вас возникли вопросы на любом этапе покупки, не стесняйтесь обращаться к нашим менеджерам!
Оплата
Мы принимаем только безналичные платежи и работаем исключительно с юридическими лицами. Пожалуйста, ознакомьтесь с условиями оплаты ниже:
- Способ оплаты: Все расчеты производятся безналичным путем. Мы не принимаем наличные.
- Счет на оплату: После оформления заказа вам будет выставлен счет, который необходимо оплатить в срок, указанный в документе.
- Реквизиты: Все необходимые банковские реквизиты будут предоставлены в счете. Убедитесь, что все данные указаны правильно для успешного перевода.
- Подтверждение оплаты: После осуществления платежа отправьте нам подтверждение, чтобы мы могли оперативно обработать ваш заказ.
- Получение документов: После полной оплаты вы получите все необходимые документы, включая акт выполненных работ, товарные накладные и сертификаты на продукцию.
Мы работаем с НДС и предоставляем все необходимые сертификаты и документы. Все гарантии будут прописаны в договоре, что обеспечивает прозрачность и надежность сотрудничества.
Если у вас есть вопросы по поводу процесса оплаты, не стесняйтесь обращаться к нашим менеджерам за помощью!
Наша оперативность — ваше удобство. Мы гарантируем своевременную доставку железобетонных изделий, что является ключевым фактором для успешной реализации ваших строительных проектов. Доставка осуществляется прямо к вашему объекту с учетом всех стандартов качества.
Основные условия доставки:
• Выбор тарифа: Вы можете выбрать способ расчета стоимости доставки — почасовой или по зонам.
• Согласование: Менеджер свяжется с вами для уточнения деталей после оформления заказа.
• Время на погрузку: Комплектация товара занимает от 1 до 3 дней в зависимости от объема.
• Акт приема-передачи: Продукция передается по акту приема-передачи.
Тарифы на доставку:
Цены варьируются в зависимости от расстояния и региона. Все тарифы включают НДС. При неблагоприятных погодных условиях возможны небольшие изменения в стоимости.
География доставки:
Мы работаем по всей территории РФ и имеем 12 офисов и производств, чтобы обеспечить удобные условия для доставки.
Для точного расчета стоимости доставки обращайтесь к нашим менеджерам!

