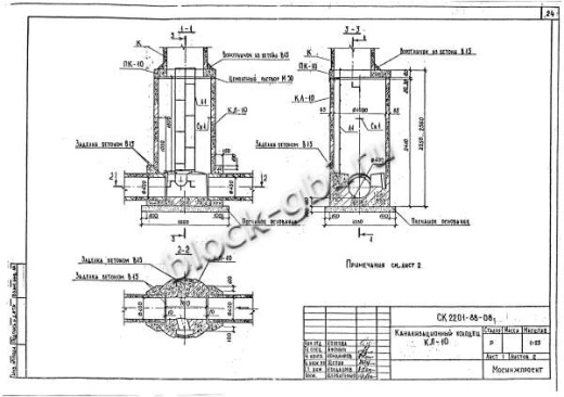
Описание колодца КЛ-10
Колодец (КЛ-10) применяется для устройства инженерных коммуникаций, таких как водоотводные, канализационные, ливневые и другие системы. Изделие изготавливается компанией ГК "БЛОК", которая специализируется на производстве и поставке железобетонных изделий в Москве, из высокопрочного бетона класса В22,5 с армированием стальной арматурой, что обеспечивает его прочность, устойчивость к нагрузкам и долговечность.
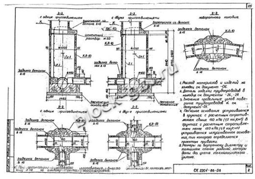
Нормативный документ: Альбом РК 2201-82.
Применение колодца КЛ-10
Колодец КЛ-10 используется для создания надёжных систем водоотведения, канализации, дренажа и других инженерных сетей. Он служит важной частью системы, обеспечивая безопасность, удобство обслуживания и долговечность эксплуатации объектов. Для монтажа могут применяться дополнительные элементы: герметизирующие материалы, закладные детали и другие комплектующие.
Типы колодцев
Железобетонные колодцы подразделяются на несколько типов в зависимости от назначения и конструкции:
- КЛ: колодец круглый;
- КД: колодец дренажный;
- КВ: колодец водоотводный;
- КУ: колодец усиленный.
Размеры зависят от типа: диаметр 1160–3000 мм, высота 2410–6000 мм.
Основные параметры, размеры и характеристики
- Длина L, мм: 1160
- Ширина b, мм: 1160
- Высота h, мм: 2410
- Масса, тонн: 2.1
- Объем бетона, м³: 0.84
- Класс бетона: B22,5 (марка М300)
- Геометрический объем, м³: 3.242896
- Сталь, кг: 28.2
- Закладная 1: Каркас Кп1
- Закладная 2: Петля П1
Дополнительные характеристики
- Марка по морозостойкости: F200–F300
- Марка по водонепроницаемости: W6–W8
- Технология изготовления: вибропрессование или формование с использованием высокопрочного бетона.
Нормы загрузки
- Норма загрузки в автотранспорт 20 т, шт: 9
Расшифровка маркировки КЛ-10
Маркировка "КЛ-10" содержит следующую информацию:
- КЛ – колодец;
- 10 – условный размер изделия (диаметр 1160 мм).
Условия транспортировки и хранения
Колодцы КЛ-10 перевозятся автомобильным или железнодорожным транспортом с использованием специальных захватных устройств (строп). Хранение осуществляется на ровных площадках с твердым покрытием. Колодцы устанавливаются вертикально или горизонтально в штабель высотой не более 2,5 м. Для предотвращения повреждений между изделиями устанавливаются деревянные прокладки.
Контроль качества колодца КЛ-10
Каждый колодец КЛ-10 проходит многоступенчатый контроль качества. Проверяются:
- прочность бетона (не ниже класса B22,5);
- соответствие геометрических размеров проектным данным;
- морозостойкость и водонепроницаемость бетона;
- точность расположения закладных элементов;
- отсутствие трещин, сколов и других дефектов.
Заключение
Колодец КЛ-10 – это надежный и долговечный элемент для устройства инженерных коммуникаций. Благодаря использованию качественных материалов и современных технологий производства, он обеспечивает прочность, устойчивость и долговечность конструкций. Для заказа качественных железобетонных изделий обращайтесь к профессионалам своего дела – компании ГК "БЛОК".
Смотрите также:
| Варианты написания товара |
|---|
| Колодец КЛ-10 |
| КЛ-10 колодец |
| Колодец КЛ-10 Альбом РК 2201-82 |
| КЛ-10 Альбом РК 2201-82 |
| КЛ-10 |
| Колодец КЛ-10 ГОСТ |
| КЛ-10 ГОСТ |
|
ГОСТ/Серия
|
Альбом РК 2201-82 |
|
Длина, мм
|
1160 |
|
Ширина, мм
|
1160 |
|
Высота, мм
|
2410 |
|
Масса, тонн
|
2.1 |
|
Объем бетона, куб.м
|
0.84 |
|
Класс бетона
|
В22,5 |
|
Геометрический объем, м.куб
|
3.242896 |
|
Сталь, кг
|
28.2 |
|
Закладная 1
|
Каркас Кп1 |
|
Закладная 2
|
Петля П1 |
Как купить
Процесс покупки железобетонных изделий у нас прост и удобен. Следуйте этим шагам:
- Выбор продукции: Ознакомьтесь с нашим ассортиментом и выберите необходимые железобетонные изделия.
- Консультация: Свяжитесь с нашим менеджером для получения консультации по выбору продукции и уточнения всех деталей. Вы можете позвонить нам или написать на электронную почту.
- Оформление заказа: После согласования всех деталей оформите заказ. Менеджер поможет вам заполнить все необходимые документы.
- Согласование доставки: После оформления заказа наш менеджер свяжется с вами для согласования условий и сроков доставки.
- Оплата: Выберите удобный способ оплаты. Мы предлагаем несколько вариантов, включая безналичный расчет.
- Получение товара: После выполнения всех условий заказа, вы получите железобетонные изделия в назначенное время и по согласованному адресу. При получении подпишите акт приема-передачи.
Если у вас возникли вопросы на любом этапе покупки, не стесняйтесь обращаться к нашим менеджерам!
Оплата
Мы принимаем только безналичные платежи и работаем исключительно с юридическими лицами. Пожалуйста, ознакомьтесь с условиями оплаты ниже:
- Способ оплаты: Все расчеты производятся безналичным путем. Мы не принимаем наличные.
- Счет на оплату: После оформления заказа вам будет выставлен счет, который необходимо оплатить в срок, указанный в документе.
- Реквизиты: Все необходимые банковские реквизиты будут предоставлены в счете. Убедитесь, что все данные указаны правильно для успешного перевода.
- Подтверждение оплаты: После осуществления платежа отправьте нам подтверждение, чтобы мы могли оперативно обработать ваш заказ.
- Получение документов: После полной оплаты вы получите все необходимые документы, включая акт выполненных работ, товарные накладные и сертификаты на продукцию.
Мы работаем с НДС и предоставляем все необходимые сертификаты и документы. Все гарантии будут прописаны в договоре, что обеспечивает прозрачность и надежность сотрудничества.
Если у вас есть вопросы по поводу процесса оплаты, не стесняйтесь обращаться к нашим менеджерам за помощью!
Наша оперативность — ваше удобство. Мы гарантируем своевременную доставку железобетонных изделий, что является ключевым фактором для успешной реализации ваших строительных проектов. Доставка осуществляется прямо к вашему объекту с учетом всех стандартов качества.
Основные условия доставки:
• Выбор тарифа: Вы можете выбрать способ расчета стоимости доставки — почасовой или по зонам.
• Согласование: Менеджер свяжется с вами для уточнения деталей после оформления заказа.
• Время на погрузку: Комплектация товара занимает от 1 до 3 дней в зависимости от объема.
• Акт приема-передачи: Продукция передается по акту приема-передачи.
Тарифы на доставку:
Цены варьируются в зависимости от расстояния и региона. Все тарифы включают НДС. При неблагоприятных погодных условиях возможны небольшие изменения в стоимости.
География доставки:
Мы работаем по всей территории РФ и имеем 12 офисов и производств, чтобы обеспечить удобные условия для доставки.
Для точного расчета стоимости доставки обращайтесь к нашим менеджерам!

